Home History
& Tour Location
& Contact Us Rates
& Reservations Calendar FAQ
& Facility Event Gallery Area Info

History & Tour

Tour the restored 1906 historic Plummer School house and see history come alive! James Ezra Plummer gave a 300" X 300" plot of land to the Larimer County School district and a temporary structure serving as the school until 1906. At that time, a new building was constructed and given the name "Plummer School."

It was a common practice in rural school districts to name the school in honor of the family who donated the land.

Besides the daily school activities, the building was used for weddings, funerals, and business meetings. The school building was also the "polling place" on election days. It was essentially the perfect place to conduct any business that was of general interest or importance to the community members. The Plummer School building served as the only school in District Number 26 until it was abandoned upon the reorganization of the public education system in 1960.
After it was abandoned, the property changed hands several times and the building was used as an antiques store, publishing office, residence, and art gallery. It survives today as a visual monument, representative of the rural community's architecture, history, ideals and dreams.

For Open House/Tour Hours Call: 303-324-0506
Contact us to schedule a tour and we'll even let you ring the old school bell!

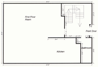
Floorplans:

First Floor

Second Floor

Event Photos | Business Functions | Social Events | Weddings | 2004 Rates
Preferred Vendor List | Facility Guidelines & Frequently Asked Questions
Floorplans | Map & Directions | Area Hotels | Announcements

Historic Plummer School in Fort Collins Colorado is now available for rent! Fort Collins day rentals 4 office training locations, kids birthday party hall. Fort Collins historic building to rent. Very romantic Wedding sites Fort Collins Colorado office training locations. Northern Colorado office retreat locations. Rent us for your Fort Collins wedding receptions or northern colorado receptions Fort Collins dance hall, meeting hall fort collins, fort collins concert hall fort collins wedding receptions, fort collins hall rental, plummer school Retirement party in fort collins,  outside reception venue, fort collins summer Fort Collins Art Studio, baby shower venues in fort collins, school with bell Fort Collins private events venue for inside or outside reception venue needs. Copyright © 2026 - Plummer School Event Center Historic Plummer School in Fort Collins Colorado is now available for rent! Fort Collins day rentals 4 office training locations, kids birthday party hall. Fort Collins historic building to rent. Very romantic Wedding sites Fort Collins Colorado office training locations. Northern Colorado office retreat locations. Rent us for your Fort Collins wedding receptions or northern colorado receptions Fort Collins dance hall, meeting hall fort collins, fort collins concert hall fort collins wedding receptions, fort collins hall rental, plummer school Retirement party in fort collins,  outside reception venue, fort collins summer Fort Collins Art Studio, baby shower venues in fort collins, school with bell Fort Collins private events venue for inside or outside reception venue needs.
2524 E. Vine Drive, Fort Collins, CO. -- Phone: (303) 324-0506 or Email:
All Rights Reserved by Their Respective Owners